Добро пожаловать на http://vipplan.ru

Випплан Салехард - это тысячи проектов домов в нашем каталоге!

Вы всегда сможете найти для себя проект дома вашей мечты! Даже если этого не случилось, мы готовы в любую минуту предложить проект индивидуального дома.

Забыли пароль?
Вы еще не регистрировались?

Перейдите по ссылке ниже на страницу регистрации.

Регистрация...

Внимание!!!

В проектную документацию могут быть внесены изменения любой сложности, в соответствии в Вашими пожеланиями!

Полезные статьи

Перекрытия в доме

Перекрытия – одно из важнейших составляющих строящегося дома. Это горизонтальная внутренняя защитная конструкция, разделяющая по уровню смежные помещения дома. По назначению выделяют подвальные, межэтажные и чердачные перекрытия. При проектировании домов и зданий различного назначения, требования к межэтажным перекрытиям определяются их местоположением и функциями разделяемых помещений: надподвальные, межэтажные, чердачные и т.д....

Уклон кровли дома

Чтобы вода быстрее уходила с кровли Вашего дома, скатам необходимо придать уклон, который выражающийся в процентах или градусах и измеряющийся геодезическими инструментами. Уклон кровли обозначает угол наклона ската к горизонту. Чем больше уклон, тем круче крыша. У новомодных зданий наклон кровли делают не очень большим....

Проекты домов и коттеджей > Каталог проектов домов > Проект уютного дома Vg1189

Проект уютного дома Vg1189

Проект уютного дома
Зарегистрируйтесь

Проект № Vg1189


Техническое описание
Общая площадь: 326.95 м2
Жилая площадь: 154.63 м2
Высота здания: 9.53 м
Размеры дома: 21.64м×16.24м
Кол-во комнат: 6
Цокольный этаж: нет
Гараж: нет
Мансарда: есть

Kонструкция
Фундамент: Монолитная плита
Перекрытия: Монолитное
Материал стен: Газобетон

Архитектурный раздел
Конструктивный раздел
АР+КР - 84 000 (Со скидкой 20%)
Проект индивидуального одноэтажного жилого дома с размерами 21,64 x 16,24 м. Наружная отделка здания – штукатурка. Цоколь – клинкерная плитка. Фундамент – монолитная плита Наружные стены запроектированы из: газобетонного блока Внутренние стены и перегородки: из газобетонного блока Перекрытие межэтажное – монолитное. Материал кровли – металлочерепица. Окна - металлопластиковые, выполненные по индивидуальному заказу.
Генплан застройки участка / Паспорт проекта 7000 руб / 10000 руб
Инженерный раздел (полный) 163500 руб
Смета на строительство 81750 руб
Теплотехнический расчет материалов стен Бесплатно
Стоимость проекта со незначительнми изменениями 96800 руб
Стоимость проекта со средними изменениями* 121400 руб
Стоимость проекта со значительными изменениями** 127900 руб

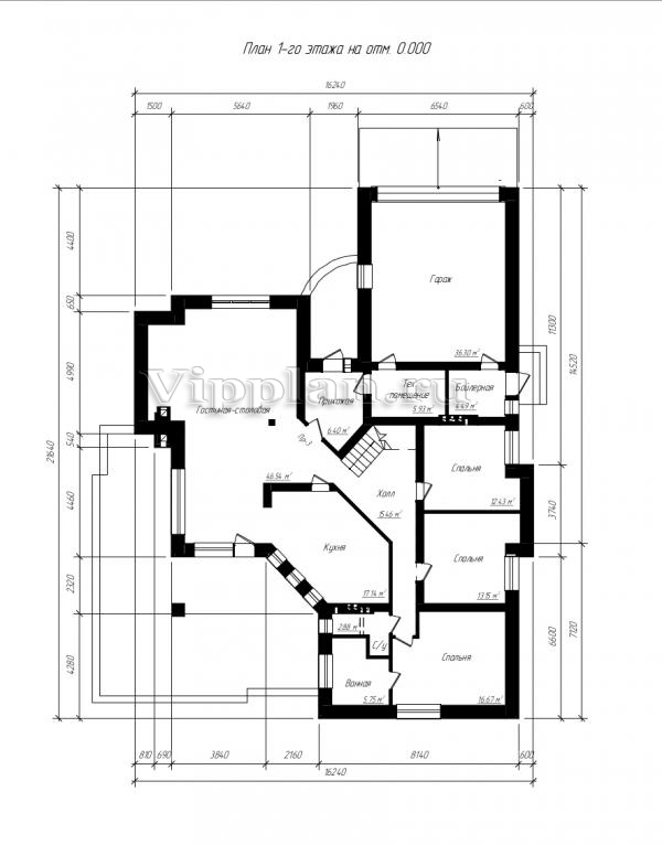
План первого этажа


Прихожая — 6,40 м2
Холл — 15,46 м2
Гостиная — 46,54 м2
Спальня — 12,43 м2
Спальня — 13,15 м2
Спальня — 16,67 м2
Кухня — 17,14 м2
Ванная — 5,75 м2
С/у — 2,88 м2
Тех/помещение — 5,93 м2
Бойлерная — 4,49 м2
Гараж — 36

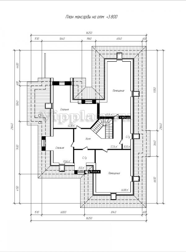
План мансардного этажа



Проект уютного дома Проект уютного дома Проект уютного дома Проект уютного дома

Модификации проектов

Внесение изменений и привязка к участку строительства

В любой из проектов от компании VIPplan - Салехард по вашему желанию могут быть внесены изменения в материалы стен, материалы наружной отделки дома, а также будет произведена адаптация проекта под конкретный регион строительства (с учетом грунтов региона, геологических особенностей вашего участка и местных климатических условий) - БЕСПЛАТНО !!! (кроме проектов со скидкой и проектов наших партнеров).

Любой из проектов, размещенных на сайте salehard.vipplan.ru мы можем выполнить из требуемых вам строительных материалов: ячеистый бетон (газобетон, пеноблок), керамоблок, кирпич, шлакоблок, бетонный блок, дерево (брус, клееный брус), каркасная технология (деревянный каркас, металлокаркас (ЛСТК)).

Фасад дома и его наружную отделку так же возможно выполнить с применением различных облицовочных материалов: структурной штукатурки, (с утеплителем и без), сайдингом (пластиковый или металлосайдинг), фиброплитами, кирпича.

 
6 Избранные
проекты

Доставка проектов по России: Москва (Московская область), Санкт-Петербург (Ленинградская область), Краснодар, Ростов-на-Дону, Ставрополь, Сочи, Волгоград, Новосибирск, Белгород, Брянск, Воронеж, Саратов, Хабаровск, Астрахань, Нальчик, Владикавказ, Екатеринбург, Тюмень, Самара, Нижний Новгород, Казань, Пермь, Уфа, Челябинск, Красноярск, Ханты-Мансийск, Иркутск, Курган, Оренбург, Омск, Томск, Барнаул, Новокузнецк, Кемерово, Абакан, Чита, Якутск, Южно-Сахалинск, Петропавловск-Камчатский и страны ближнего зарубежья: Белоруссия, Украина, Казахстан