Добро пожаловать на http://vipplan.ru

Випплан Салехард - это тысячи проектов домов в нашем каталоге!

Вы всегда сможете найти для себя проект дома вашей мечты! Даже если этого не случилось, мы готовы в любую минуту предложить проект индивидуального дома.

Забыли пароль?
Вы еще не регистрировались?

Перейдите по ссылке ниже на страницу регистрации.

Регистрация...

Внимание!!!

В проектную документацию могут быть внесены изменения любой сложности, в соответствии в Вашими пожеланиями!

Полезные статьи

Выбор сайдинга

Прежде чем купить сайдинг, нужно определиться зачем он нужен: для защиты фасада от непогоды, для придания привлекательности внешнему виду дома или для утепления дома.Что же из себя представляет сайдинг? Сайдинг – это материал для облицовки фасада из компаунда. В данной статье мы поможем Вам определиться выбором сайдинга для отделки фасада дома...

Правильная изоляция подвала

Какой выбрать материал, как правильно выполнить работу, перед началом изоляции подвала какие подготовительно-строительные работы следует провести и какой момент играет правильное выполнение работ. Последние несколько лет придали много хлопот жильцам домов, увлажнив им подвалы. Этот период показал насколько важно обеспечить надлежащую защиту зданий от грунтовых вод и воздействия влаги....

Проекты домов и коттеджей > Каталог проектов домов > Двухэтажный дом с террасой, навесом и балконами Vg1229

Двухэтажный дом с террасой, навесом и балконами Vg1229

Двухэтажный дом с террасой, навесом и балконами
Зарегистрируйтесь

Проект № Vg1229


Техническое описание
Общая площадь: 122.67 м2
Жилая площадь: 45.93 м2
Высота здания: 7.7 м
Размеры дома: 12.18м×8.76м
Кол-во комнат: 3
Цокольный этаж: нет
Гараж: нет
Мансарда: нет

Kонструкция
Фундамент: Ленточный
Перекрытия: Сборные ж/б плиты
Материал стен: Бетонные блоки

Архитектурный раздел
Конструктивный раздел
АР+КР - 48 000 (Со скидкой 20%)
Срок разработки проекта — 7 рабочих дней. Проект индивидуального двухэтажного жилого дома с размерами здания 12,18 x 8,76м. Стены - фасадная штукатурка 2х цветов. Цоколь - отделка клинкерной плиткой. Кровля - гибкая черепица. Отделка вентканалов и дымоходов - штукатурка. Фундамент - ленточный, монолитный ж/б. Наружные стены дома: газобетонные блоки, экструдированный пенополистирол, фасадная штукатурка. Внутренние стены и перегородки: газобетонные блоки. Пол первого этажа - пол по грунту. Пол 2 этажа - сборные ж/б плиты перекрытия. Крыша дома скатная. Перемычки - монолитные и сварные из профиля проката. Окна - металлопластиковые, выполненные по индивидуальному заказу. Лестница выполняется по индивидуальному заказу.
Генплан застройки участка / Паспорт проекта 7000 руб / 10000 руб
Инженерный раздел (полный) 61500 руб
Смета на строительство 30750 руб
Теплотехнический расчет материалов стен Бесплатно
Стоимость проекта со незначительнми изменениями 56900 руб
Стоимость проекта со средними изменениями* 66200 руб
Стоимость проекта со значительными изменениями** 68600 руб

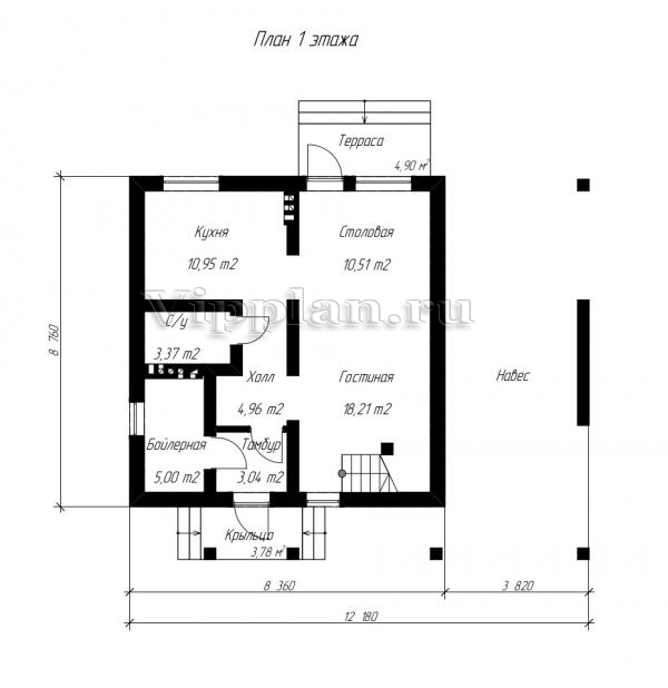
План первого этажа


Тамбур — 3,04 кв м
Холл — 4,96 кв м
Бойлерная — 5,00 кв м
С/у — 10,95 кв м
Кухня — 10,95 кв м
Столовая — 10,51 кв м
Гостиная — 18,21 кв м

Двухэтажный дом с террасой, навесом и балконами

Двухэтажный дом с террасой, навесом и балконами

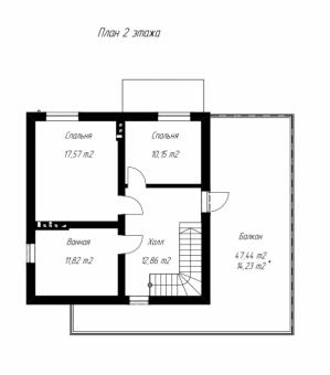
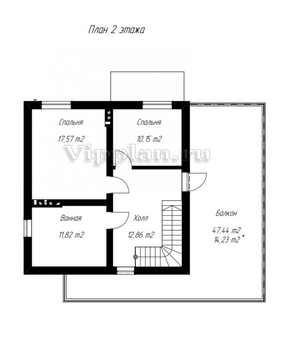
План второго этажа


Холл — 12,86 кв м
Спальня — 11,82 кв м
Спальня — 17,57 кв м
Спальня — 10,15 кв м
Балкон — 47,44 кв м
Двухэтажный дом с террасой, навесом и балконами Двухэтажный дом с террасой, навесом и балконами Двухэтажный дом с террасой, навесом и балконами Двухэтажный дом с террасой, навесом и балконами

Модификации проектов

Внесение изменений и привязка к участку строительства

В любой из проектов от компании VIPplan - Салехард по вашему желанию могут быть внесены изменения в материалы стен, материалы наружной отделки дома, а также будет произведена адаптация проекта под конкретный регион строительства (с учетом грунтов региона, геологических особенностей вашего участка и местных климатических условий) - БЕСПЛАТНО !!! (кроме проектов со скидкой и проектов наших партнеров).

Любой из проектов, размещенных на сайте salehard.vipplan.ru мы можем выполнить из требуемых вам строительных материалов: ячеистый бетон (газобетон, пеноблок), керамоблок, кирпич, шлакоблок, бетонный блок, дерево (брус, клееный брус), каркасная технология (деревянный каркас, металлокаркас (ЛСТК)).

Фасад дома и его наружную отделку так же возможно выполнить с применением различных облицовочных материалов: структурной штукатурки, (с утеплителем и без), сайдингом (пластиковый или металлосайдинг), фиброплитами, кирпича.

 
6 Избранные
проекты

Доставка проектов по России: Москва (Московская область), Санкт-Петербург (Ленинградская область), Краснодар, Ростов-на-Дону, Ставрополь, Сочи, Волгоград, Новосибирск, Белгород, Брянск, Воронеж, Саратов, Хабаровск, Астрахань, Нальчик, Владикавказ, Екатеринбург, Тюмень, Самара, Нижний Новгород, Казань, Пермь, Уфа, Челябинск, Красноярск, Ханты-Мансийск, Иркутск, Курган, Оренбург, Омск, Томск, Барнаул, Новокузнецк, Кемерово, Абакан, Чита, Якутск, Южно-Сахалинск, Петропавловск-Камчатский и страны ближнего зарубежья: Белоруссия, Украина, Казахстан