Добро пожаловать на http://vipplan.ru

Випплан Салехард - это тысячи проектов домов в нашем каталоге!

Вы всегда сможете найти для себя проект дома вашей мечты! Даже если этого не случилось, мы готовы в любую минуту предложить проект индивидуального дома.

Забыли пароль?
Вы еще не регистрировались?

Перейдите по ссылке ниже на страницу регистрации.

Регистрация...

Внимание!!!

В проектную документацию могут быть внесены изменения любой сложности, в соответствии в Вашими пожеланиями!

Полезные статьи

Выбор участка для строительства дома

Если вы решили приобрести участок земли и построить на нем дом или дачу. То данная статья специально для вас. А так же мы поможем вам в выборе проекта для выбранного вами участка....

Дом это прекрасное вложение

Современный рынок недвижимости диктует свои правила. Цены на землю и недвижимость в Салехарде постоянно растут и вынуждают по-другому смотреть на покупку собственного дома. Не только со стороны получения удобного, благоустроенного жилья, но и со стороны капитализации и инвестировании своих средств...

Проекты домов и коттеджей > Каталог проектов домов > Проект двухэтажного дома c большим гаражом и террасой Vg1479

Проект двухэтажного дома c большим гаражом и террасой Vg1479

Проект двухэтажного дома c большим гаражом и террасой
Зарегистрируйтесь

Проект № Vg1479


Техническое описание
Общая площадь: 275.94 м2
Жилая площадь: 129.4 м2
Высота здания: 9.58 м
Размеры дома: 21.26м×19.88м
Цокольный этаж: нет
Гараж: нет
Мансарда: нет

Kонструкция
Фундамент: Ленточный из блоков ФБС
Перекрытия: Ж/б плиты
Материал стен: Газобетон

Архитектурный раздел
Конструктивный раздел
АР+КР - 72 000 (Со скидкой 20%)
Проект индивидуального двухэтажного жилого дома с размерами здания 21,26 х 19,88 м. Наружная отделка здания – облицовочный кирпич. Фундамент – ленточный из блоков ФБС (под несущими стенами). Наружные стены – газобетонные блоки, утеплитель - экструдированный пенополистирол, воздушный зазор, отделка - облицовочный кирпич Внутренние стены - газобетонные блоки. Перегородки – кирпич . Пол 1 этажа - пол по грунту. Межэтажное перекрытие – ж/б плиты.Чердачное перекрытие - деревянные балки. Крыша - металлочерепица. Кровля – четырехскатая. Окна - металлопластиковые, выполненные по индивидуальному заказу.
Генплан застройки участка / Паспорт проекта 7000 руб / 10000 руб
Инженерный раздел (полный) 138000 руб
Смета на строительство 69000 руб
Теплотехнический расчет материалов стен Бесплатно
Стоимость проекта со незначительнми изменениями 83100 руб
Стоимость проекта со средними изменениями* 103800 руб
Стоимость проекта со значительными изменениями** 109300 руб

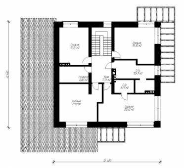
План первого этажа


Гараж - 50,50 м2
Бойлерная - 11,17 м2
Кладовая - 8,70 м2
Кабинет - 15,34 м2
С/у - 4,84 м2
Холл - 17,98 м2
Тамбур - 4,90 м2
Крыльцо - 3,50 м2
Кладовая - 2,62 м2
Кухня - 15,22 м2
Гостиная - 35,67 м2

Проект двухэтажного дома c большим гаражом и террасой

Проект двухэтажного дома c большим гаражом и террасой

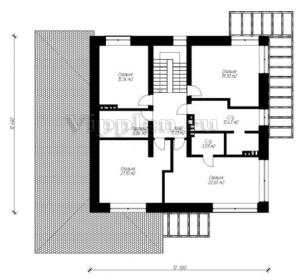
План второго этажа


Спальня - 15,34 м2
Спальня - 19,30 м2
С/у - 12,43 м2
С/у - 3,59 м2
Холл - 7,73 м2
Гардероб - 6,86 м2
Спальня - 21,10 м2
Спальня - 22,65 м2
Проект двухэтажного дома c большим гаражом и террасой Проект двухэтажного дома c большим гаражом и террасой Проект двухэтажного дома c большим гаражом и террасой Проект двухэтажного дома c большим гаражом и террасой

Модификации проектов

Внесение изменений и привязка к участку строительства

В любой из проектов от компании VIPplan - Салехард по вашему желанию могут быть внесены изменения в материалы стен, материалы наружной отделки дома, а также будет произведена адаптация проекта под конкретный регион строительства (с учетом грунтов региона, геологических особенностей вашего участка и местных климатических условий) - БЕСПЛАТНО !!! (кроме проектов со скидкой и проектов наших партнеров).

Любой из проектов, размещенных на сайте salehard.vipplan.ru мы можем выполнить из требуемых вам строительных материалов: ячеистый бетон (газобетон, пеноблок), керамоблок, кирпич, шлакоблок, бетонный блок, дерево (брус, клееный брус), каркасная технология (деревянный каркас, металлокаркас (ЛСТК)).

Фасад дома и его наружную отделку так же возможно выполнить с применением различных облицовочных материалов: структурной штукатурки, (с утеплителем и без), сайдингом (пластиковый или металлосайдинг), фиброплитами, кирпича.

 
6 Избранные
проекты

Доставка проектов по России: Москва (Московская область), Санкт-Петербург (Ленинградская область), Краснодар, Ростов-на-Дону, Ставрополь, Сочи, Волгоград, Новосибирск, Белгород, Брянск, Воронеж, Саратов, Хабаровск, Астрахань, Нальчик, Владикавказ, Екатеринбург, Тюмень, Самара, Нижний Новгород, Казань, Пермь, Уфа, Челябинск, Красноярск, Ханты-Мансийск, Иркутск, Курган, Оренбург, Омск, Томск, Барнаул, Новокузнецк, Кемерово, Абакан, Чита, Якутск, Южно-Сахалинск, Петропавловск-Камчатский и страны ближнего зарубежья: Белоруссия, Украина, Казахстан